Neubau KfW 40 + in ländlicher Umgebung Lemgo-Wahmbeck!







Objektart
Haus
Objekttyp
Doppelhaushälfte
Vermarktungsart
Kauf
PLZ
32657
Ort
Lemgo / Wahmbeck
ImmoNr
250941
Wohnfläche
ca. 110 m²
Grundstücksgröße
ca. 500 m²
Anzahl Zimmer
5
Anzahl Badezimmer
2
Kaufpreis
399.000,00 €
Baujahr
2027
Energieausweis
es besteht keine Pflicht!
wesentlicher Energieträger
Luft/Wasser Wärmepumpe
Beschreibung
Inmitten der wunderschönen ländlichen Umgebung von Lemgo Wahmbeck entsteht diese moderne Neubau Doppelhaushälfte im energieeffizienten KfW 40 Plus Standard. Dieses Zuhause vereint nachhaltiges Bauen, zeitgemäßen Wohnkomfort und naturnahes Leben auf ideale Weise. Das Haus erstreckt sich über drei Ebenen und bietet mit insgesamt vier gut geschnittenen Schlafzimmern viel Platz für Familien, Paare oder Menschen mit Bedarf an einem Arbeitszimmer.Der offen gestaltete Wohnbereich mit angeschlossenem Essplatz im Erdgeschoss überzeugt durch Helligkeit und einen direkten Zugang zur sonnigen Terrasse. Hier lässt sich der Blick ins Grüne in ruhiger Atmosphäre genießen. Die hochwertige Ausstattung zeigt sich auch in den beiden modernen Bädern. Eines davon verfügt über eine Badewanne und eine bodengleiche Dusche und bietet viel Komfort für den Alltag.
Ein eigener Carport gehört ebenfalls zum Haus und bietet einen geschützten Stellplatz direkt am Grundstück. Die Lage in Lemgo Wahmbeck bietet pure Lebensqualität. Umgeben von Feldern, Wiesen und kleinen Waldstücken finden Naturliebhaber hier den idealen Rückzugsort. Spaziergänge, Radtouren und Naturerlebnisse beginnen direkt vor der Haustür.
Trotz der naturnahen Lage sind die Angebote der alten Hansestadt Lemgo schnell erreichbar. Einkaufsmöglichkeiten, Schulen, medizinische Versorgung und kulturelle Einrichtungen befinden sich in kurzer Entfernung und machen das tägliche Leben angenehm und unkompliziert.
Diese moderne Doppelhaushälfte verbindet zukunftsfähige Bauweise mit ruhigem Wohnen im Grünen und ist damit das perfekte Zuhause für alle, die Wert auf Qualität, Nachhaltigkeit und Erholung legen.
Der Verkauf erfolgt ohne Malerarbeiten, Bodenbeläge und Fliesen. Die schlüsselfertige Ausfertigung ist nach individueller Absprache möglich.
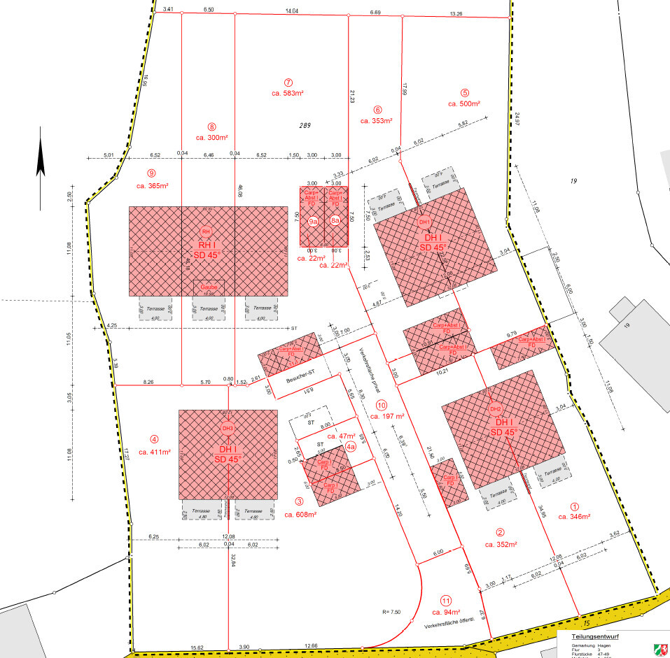
Es werden 5 weitere Doppelhaushälften auf dem Grundstück angeboten. Sind Sie neugierig geworden, dann vereinbaren Sie gerne einen Beratungstermin mit un
Lage
Die Immobilie befindet sich im Lemgoer Ortsteil Wahmbeck, in der ruhigen Wohnstraße An der Reihe. Die Lage zeichnet sich durch ihre naturnahe Umgebung und die entspannte, ländliche Atmosphäre aus – ideal für alle, die ein ruhiges Zuhause im Grünen suchen und dennoch die Nähe zur Stadt schätzen.Wahmbeck liegt nur wenige Autominuten vom Zentrum der alten Hansestadt Lemgo entfernt. Dort finden sich zahlreiche Einkaufsmöglichkeiten, Schulen, Kindergärten, Ärzte sowie kulturelle und gastronomische Angebote. Eine gute Anbindung an den öffentlichen Nahverkehr ist ebenfalls gegeben.
Die direkte Umgebung ist geprägt von Einfamilienhäusern, Feldern und kleinen Waldstücken. Zahlreiche Spazier- und Radwege beginnen praktisch vor der Haustür und laden zur aktiven Erholung in der Natur ein.
An der Reihe bietet damit eine attraktive Kombination aus ruhigem, familienfreundlichem Wohnen und guter Erreichbarkeit aller städtischen Einrichtungen.
Ausstattung
- Haus 5 im Teilungsplan- KFW 40+ Effizienzhaus
- Luft-/Wärmepumpe von Vissmann
- Photovoltaikanlage
- elektr. Rollläden
- 3-fach verglaste Fenster
- bodentiefe Duschen
- Ankleideraum am Hauptschlafzimmer
- Haustechnikraum
- Hauswirtschaftsraum im 1. OG
- Carport
- Terrasse
- Verkauf ohne Malerarbeiten, Bodenbeläge und Fliesen, schlüsselfertige Ausfertigung ist nach individueller Absprache möglich
Ein Energieausweis ist in Vorbereitung und wird nach Fertigstellung erstellt!
Ansprechpartner
Frau Verena Albrecht
Immoloft GmbH
Auf dem Sande 46
32791 Lage
Telefon1
+49 5232 9649649
mobile
+49 151 26106010
Email
info@immoloft-anfragen.de
Jetzt Kontakt aufnehmen:
Pages: 1
