Sehr gepflegte Doppelhaushälfte in Gütersloh zu verkaufen!









Objektart
Haus
Objekttyp
Doppelhaushälfte
Vermarktungsart
Kauf
PLZ
33334
Ort
Gütersloh
ImmoNr
251046
Wohnfläche
ca. 116 m²
Grundstücksgröße
ca. 171 m²
Anzahl Zimmer
5
Anzahl Badezimmer
2
Kaufpreis
360.000,00 €
Baujahr
2004
Energieausweis
liegt zur Besichtigung vor
Außen-Provision
zzgl. 3,57 % Provision inkl. 19 % MwSt.
Beschreibung
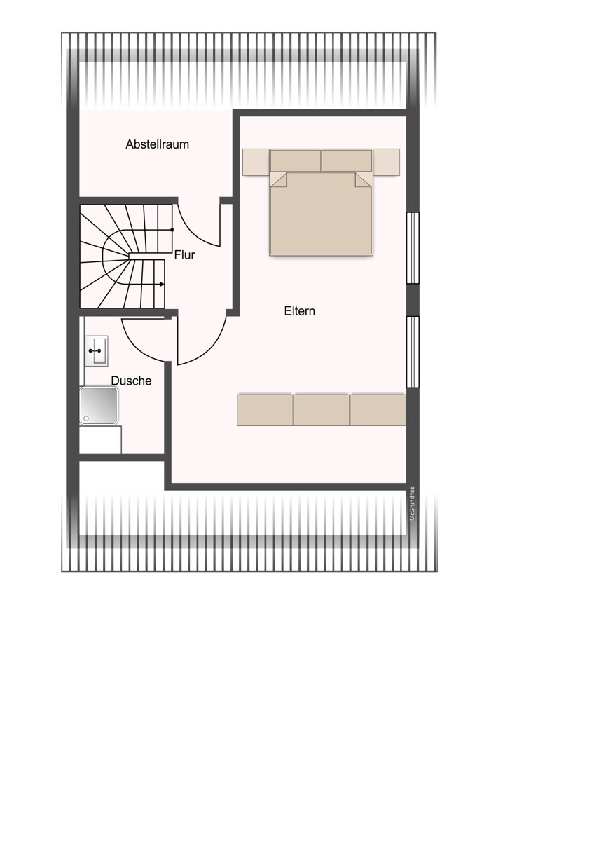
Diese gepflegte Doppelhaushälfte aus dem Jahr 2004 bietet mit einer Wohnfläche von ca. 115,50 Quadratmetern ein komfortables Zuhause für Familien oder Paare mit Platzbedarf. Das Haus steht auf einem Grundstück von 171 Quadratmetern und überzeugt durch eine durchdachte Raumaufteilung sowie eine familienfreundliche Wohnlage.Im Erdgeschoss erwartet Sie ein großzügiger Wohnbereich mit offener Küche und direktem Zugang zur Terrasse und in den Garten. Die offene Gestaltung schafft eine helle und freundliche Wohnatmosphäre. Ein praktischer Hauswirtschaftsraum befindet sich ebenfalls im Erdgeschoss und bietet Platz für Waschmaschine, Trockner und zusätzliche Staufläche.
In den oberen Etagen stehen insgesamt vier gut geschnittene Schlaf- und Kinderzimmer zur Verfügung, die sich flexibel nutzen lassen – zum Beispiel als Kinderzimmer, Arbeitszimmer oder Gästezimmer.
Ein Carport auf einem separaten Grundstück gehört ebenfalls zur Immobilie und schützt Ihr Fahrzeug vor Witterungseinflüssen.
Diese Immobilie überzeugt nicht nur durch ihre Ausstattung und den gepflegten Zustand, sondern auch durch die attraktive Lage in einem ruhigen Wohngebiet mit Nähe zur Innenstadt und zum Elisabeth Krankenhaus.
Lage
Diese gepflegte Doppelhaushälfte befindet sich in einer ruhigen und familienfreundlichen Wohngegend im südöstlichen Teil von Gütersloh. Die Lage überzeugt durch eine gelungene Kombination aus naturnahem Wohnen und städtischer Nähe. Direkt angrenzend an weite Felder und Grünflächen genießen Sie hier eine erholsame Wohnatmosphäre mit hohem Freizeitwert. Spaziergänge, Radtouren und entspannte Stunden in der Natur lassen sich direkt vor der Haustür verwirklichen.Gleichzeitig erreichen Sie die Innenstadt von Gütersloh in nur wenigen Minuten. Einkaufsmöglichkeiten, Cafés, Restaurants und kulturelle Angebote befinden sich in komfortabler Nähe und machen das Wohnumfeld besonders attraktiv für Familien, Paare und Berufstätige.
Ein weiterer Vorteil ist die fußläufige Nähe zum Elisabeth Krankenhaus, das eine hervorragende medizinische Versorgung bietet. Auch Schulen, Kindergärten und öffentliche Verkehrsmittel sind schnell erreichbar und tragen zur hohen Lebensqualität dieser Lage bei.
Ausstattung
- Baujahr 2004- Carport
- Gas-Etagen-Heizung 2024
- Gäste-WC
- 4 Schlafzimmer
- Hauswirtschaftsraum
Zum Schutz der derzeitigen Mieter erhalten Sie Innenbilder erst auf Anfrage des Exposés! Die Photovoltaikanlage steht nicht mit zum Verkauf!
Ein Energieausweis ist z.Zt. in Bearbeitung und liegt zur Besichtigung vor!
Sonstige Angaben
UNSER SERVICE FÜR EIGENTÜMERMöchten Sie Ihre Immobilie verkaufen oder vermieten? Dann ist eine professionelle Wertermittlung entscheidend. Unsere Immobilienspezialisten bieten Ihnen eine kostenfreie und unverbindliche Einschätzung des aktuellen Marktwerts Ihrer Immobilie.
Ansprechpartner
Frau Verena Albrecht
Immoloft GmbH
Auf dem Sande 46
32791 Lage
Telefon1
+49 5232 9649649
mobile
+49 151 26106010
Email
info@immoloft-anfragen.de
Jetzt Kontakt aufnehmen:
Pages: 1
